Уважаемые жители города Йошкар-Олы, уведомляем вас о временных ограничениях на проезд и парковку транспортных средств по следующим адресам:
1. В связи с проведением мероприятия, с 20 часов 11 декабря до 20 часов 12 декабря будет запрещен въезд всех транспортных средств на парковку к д. 26 Б по Ленинскому проспекту, за исключением участников мероприятия.
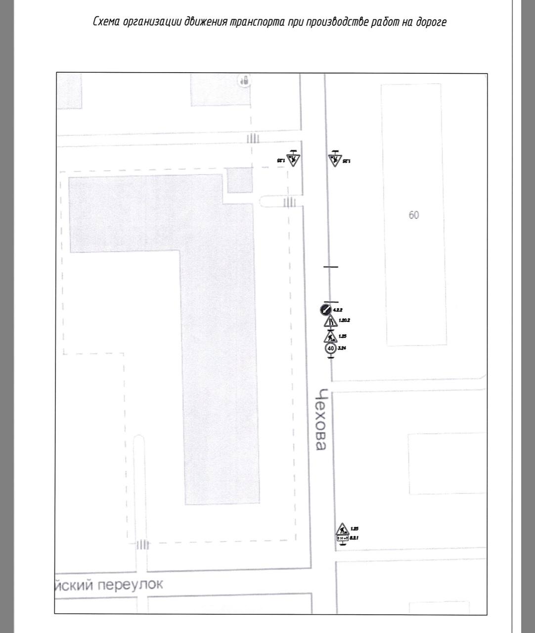
2. В связи с проведением работ по прокладке сетей водоснабжения, с 12 по 19 декабря 2025 г. будет ограничено движение всех транспортных средств по улице Чехова в районе д. 60






































